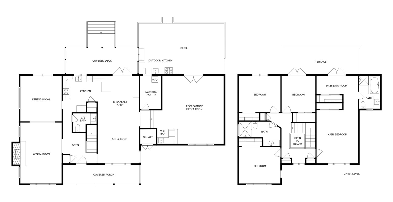
Penngrove town & country 2921sf contemporary farmhouse on 1.51 acres in charming bucolic Penngrove. 635 Palm Avenue awaits your future gatherings with expansive decks, covered front porch, paver patios, fire pit, fountain, pastoral meadow, and gardens. Your trucks, toys, tractors, RVs, boats, and projects will love their 1600sf separate garage and shop with 3 roll up doors tucked back along Sesame Street. Four bedrooms, two and one-half bathrooms, living room, family room, and expansive great room with bar, sink, and beverage refrigerator. Primary suite with separate office / dressing area and view balcony perfect for your morning brew. Warm your winters with the living room fireplace, central heating, and cedar barrel sauna. The Tesla solar system is paid for and ready to power up. Refined interiors with contemporary spa-inspired bathrooms, hardwood floors, and custom built-ins. Recently named the 6th Best Small Town in the US by Travel + Leisure Magazine, you will be charmed by Penngrove. From the Annual 4th of July Parade and BBQ, Penngrove Clubhouse, park, market, shops, pubs, and newly opened SMART pathway connecting to miles of trails. Live the Sonoma County wine country life on acreage but just minutes to downtown Penngrove, Petaluma, Cotati, and Highway 101.
Property Details
Features
- 1.51 Acres
- Contemporary Farmhouse
- 2921sf
- 1600sf Shop / Garage
- Fenced Pasture
- Penngrove Water
- Hardwood Floors
- Fireplace
- Cedar Barrel Sauna
- Great Room
- Living Room
- Family Room
- Primary Suite & Office
- View Balcony
- Covered Deck
- Covered Front Porch
- Slate & Paver Accents
- Fountain
- Firepit
- Paver Patio
- Al Fresco Dining Deck
- Outdoor Kitchen
- Shed
Photos
Floor Plans
Map
Presented By
